Třígenerační letní dům navrhli tradičně s doškovou střechou a opáleným dřevem jako když se v Jutlandu stavělo z lodních vraků
- 12. října 2025
- Realizace
- autor: Jan Gerych
- Foto: Rasmus Hjortshøj
SKAGEN, DÁNSKO — Kancelář PAX Architects z nedalekého Aarhusu podala tradiční místní tvarosloví v současném výrazu a organizaci. Střecha je došková, jak je zvykem, fasádu tvoří černě natřené dřevo z douglasek, ovšem rozsáhlé skleněné plochy v širokých dubových rámech nejenže zaplavují interiér světlem, taky jej napojují na okolní krajinu. Stylový prvek představuje úzký průběžný okenní pás, který vizuálně odsazuje střechu, takže se v noci vznáší nad zářícím domem.

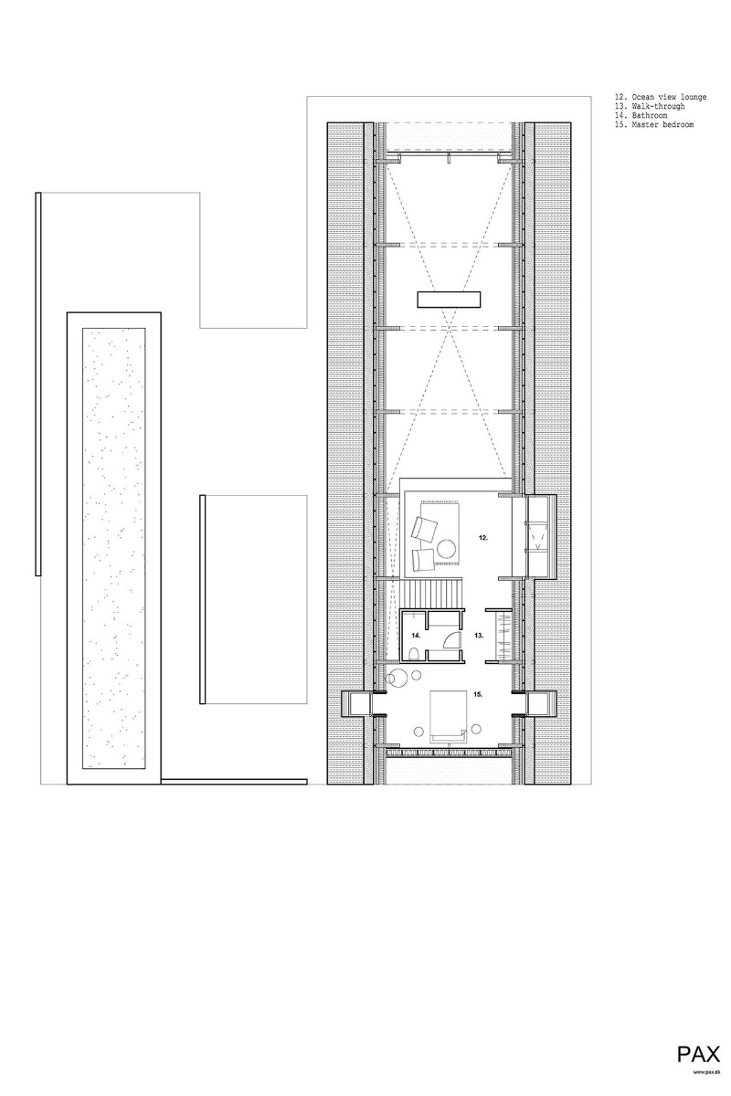
Nejdůležitější požadavek na Skagen Klitgård House byl, aby dokázal vstřebat tři generace obyvatel tak, že bude mít každá svůj prostor, klid a soukromí. Interiér se na otevřeném půdorysu dělí do sekcí s variabilním využitím. Pro společné chvíle je tu ústřední kuchyň, vizuálně oddělené části a uzavřené sekce nabízí možnost oddělit se. Intimnější prostory charakterizují nižší stropy, všechny však slučuje jedna velká sedlová střecha jako potvrzení pospolitosti.
Barevné schéma inspirovala okolní příroda, aby se posílilo vizuální propojení interiéru a exteriéru, a akustické stropy ještě dotáhly k dokonalosti intimní a hřejivou atmosféru pro rekreaci rodiny.
