Stoletá motorárna přežila v barcelonském parku díky přeměně na muzeum historie města
- 16. července 2021
- Realizace
- autor: Jan Gerych
- Foto: Adriá Goula
Továrna na výrobu motorů v Poble Nou měla padnout při rekonstrukci parku, jen pár dní před demolicí ji zachránila iniciativa za zachování místního průmyslového dědictví.
POBLE NOU, BARCELONA – Původně samostatná obec severně od Barcelony se v 19. století stala jejím průmyslovým předměstím a vysloužila si přezdívku Katalánský Manchester. Jedna z industriálních památek, továrna na motory a za Španělské války taky protiletecké granáty a nábojnice do kulometů, byla transformována na muzeum historie města.

Po útlumu původních průmyslových odvětví a drastickém úpadku ve druhé polovině 20. století se čtvrt postupně proměnila v jedno z nejžádanějších míst pro život. Je tam dostatek prostoru a zeleně, málo turistů, na jedné straně leží pláže a na druhé centrum města. Největší roli v novém rozmachu sehrála olympiáda v roce 1992, vznikla zde olympijská vesnička. Některé z bývalých industriálních staveb se zrekonstruovaly na bydlení a nová identita čtvrti vzhlíží ke kreativním odvětvím. Dnes tam najdete architektonické ikony jako Forum Building od Herzoga a de Meurona nebo Torre Agbar od Jeana Nouvela.
Jean Nouvel taky navrhl rekonstrukci centrálního parku, jež znamenala zánik části rušné ulice Pere IV. Stejný osud měl potkat i továrnu z roku 1920, jež k ulici přiléhala. Jen pár dní před ohlášenou demolicí se podařilo místní organizaci, hájící průmyslové dědictví, přesvědčit městskou radu, aby budovu zachovala. Byla již ve značně zuboženém stavu, a tak se vypsala veřejná soutěž na opravu a adaptaci pro účely muzea.

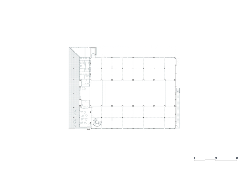
V soutěži v roce 2009 zvítězilo místní studio BAAS. Vnější vzhled stavby narušovaly různé kůlny a přístavky, takže se zaměřili na specifický trojlodní interiér. Vylili betonovou podlahu a postavili střechu. Přidali i zřetelnou novou vrstvu – točité schodiště z galvanizované oceli se zlatavým odstínem. Ze stejného materiálu jsou i lávky a venkovní schodiště. Na závěr dostavěli krytý hlavní vstup s výtahem.

Strohý plán rekonstrukce se musel z finančních důvodů rozfázovat a natáhnout do delšího časového horizontu. Muzeum fungovalo po nějakou dobu v provizorních podmínkách a bez klimatizace. Přesto se společensky osvědčilo a odehrály se v něm již spousty úspěšných kulturních akcí. Původní budova potvrdila svou hodnotu a nové zásahy architektů jí přidali na nevídané noblese.



