Radikální řez do tradiční stodoly vytvořil moderní rodinné bydlení
PEPINGEN, BELGIE — Architekti Oyo s kancelářemi v Gentu a Barceloně upravili zemědělský objekt pro rodinné bydlení na vesnici nedaleko Bruselu. Do stodoly z 19. století se pustili radikálním trojúhelníkovým řezem, takže vytvořili plynulý přechod mezi vnitřním a vnějším prostorem.

Energeticky úsporná rekonstrukce zachovala fasádu orientovanou do ulice ve vzhledu klasické stodoly. Opačná strana překvapí moderním otvorem, jenž dal vzniknout otevřenému dvorku uvnitř hmoty domu. Vyměnila se stará azbestová střecha a přibyly solární panely. Maximální energetickou účinnost přestavby zajistily konstrukční prvky z masivu izolované dřevěnou vlnou, téměř soběstačný nízkoemisní provoz poskytuje tepelné čerpadlo vzduch-voda a tepelný komfort podporuje opuka na stěnách a vestavěných jednotkách.

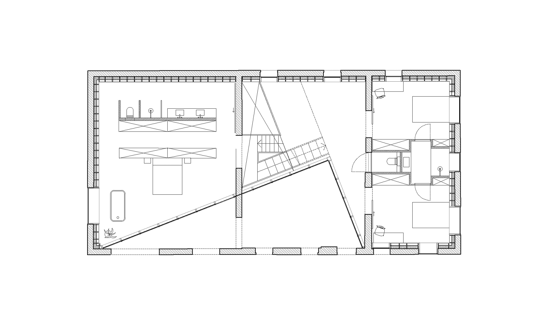
Interiér tvoří stupňovitě uspořádané úrovně, mezipatra a dvojitě vysoké stropy. Prochází jím geometrické schodiště ze zelené oceli, jež propojuje ložnici s obývákem, obývák s vyvýšenou terasou a kuchyň se zahradou. Středobod prostorové organizace dělá kuchyně s velkým centrálním ostrůvkem v lososově růžové barvě.

Světlý borovicový strop a leštěná betonová podlaha kontrastují s tmavším dřevem na míru vyrobeného nábytku. Pár schodů nad kuchyní je obývací pokoj s výrazným stropem a velkoformátovými okny s výhledem na terasu. Nábytek v neutrálních tónech doplňují akcenty zelené a terakotové barvy.

Krajinná úprava vsadila na místní rostliny, aby dům dobře zapadl. Mikroklima obohacuje přírodní jezírko, jež přitom slouží jako kolektor dešťové vody.