Užší než Avion. Vítěz CAW Michal Králik vyplnil proluku v Jezuitské ulici
- 19. prosince 2017
- Rozhovor
- Studenti
- Soutěže
- exkluzivně
- Aktuality
- autor: Jiří Hloušek
Student Fakulty stavební VUT Michal Králik se popasoval s úkolem umístit polyfunkční dům s kavárnou, galerií a pěti byty do osm metrů „široké“ proluky. Za svoji ročníkovou práci dostal hlavní cenu v 12. ročníku Ceny Arnošta Wiesnera (CAW).
Proluky naproti kostelu Nanebevzetí Panny Marie v Jezuitské ulici si kolemjdoucí skoro nevšimne. Pozornější pohled přiměje k zamyšlení, proč lukrativní, byť úzkou, parcelu v centru Brna zabírají dvě garáže. To přimělo třiadvacetiletého studenta Michala Králika FAST VUT zvolit si zástavbu proluky jako téma své ateliérové a následně i bakalářské práce. Jeho sedmipodlažní dům zaujal porotu Cena Arnošta Wiesnera a získal hlavní cenu. Pro zajímavost, slavný hotel Avion, který je považován za vrcholné dílo funkcionalistické meziválečné architektury i mimo brněnský kontext, stojí na parcele široké 8,5 (při ulici Česká) a dlouhé 34 metrů.
Proč jste se pustil právě do řešení proluky?
Proluky mezi domy mě vždy velmi zajímaly a můj malý sen je podobnou stavbu zrealizovat. Proto jsem si vybral z možností ateliérových témat právě proluku v Jezuitské ulici v Brně naproti kostelu Nanebevzetí Panny Marie. Centra měst se vylidňují, byty nahrazují kanceláře a komerce. Tím pádem jsem kladl důraz na bytovou část domu. S vedoucí mé práce Ing. arch. Marcelou Uřídilovou nám přišlo zvláštní, že na nejlukrativnějších pozemcích v centru Brna jsou garáže.
Parcela je specifická svojí výměrou 8x48 metrů. Co to pro vás znamenalo?
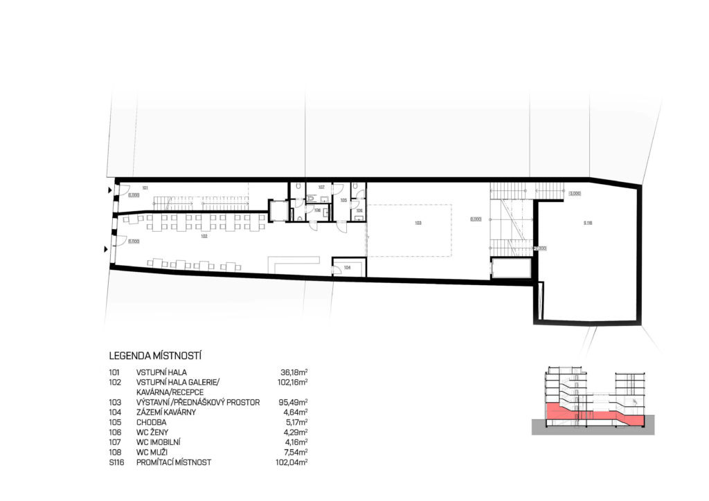
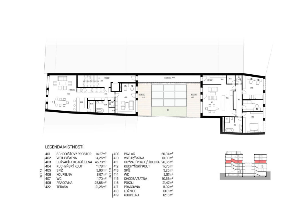
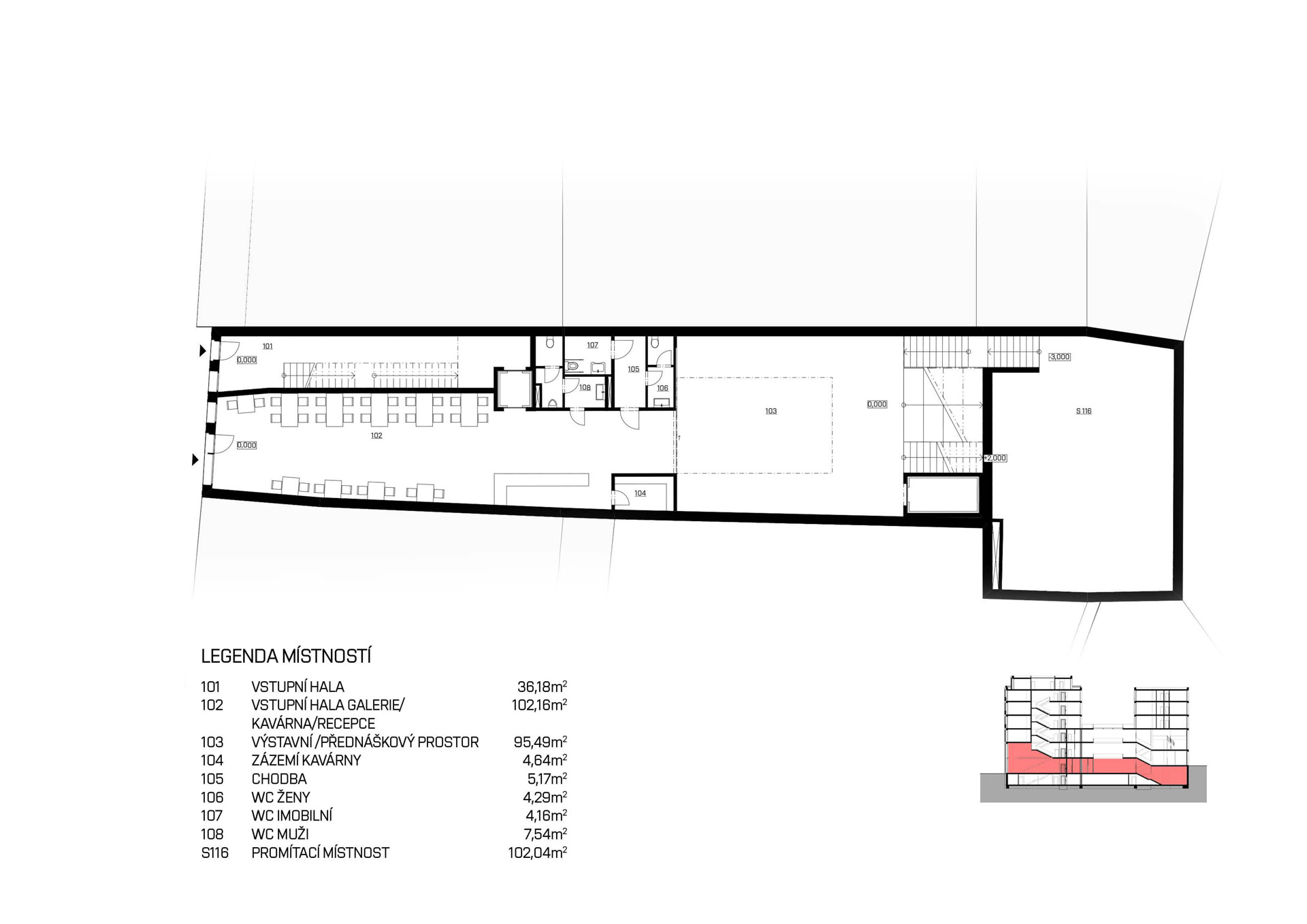
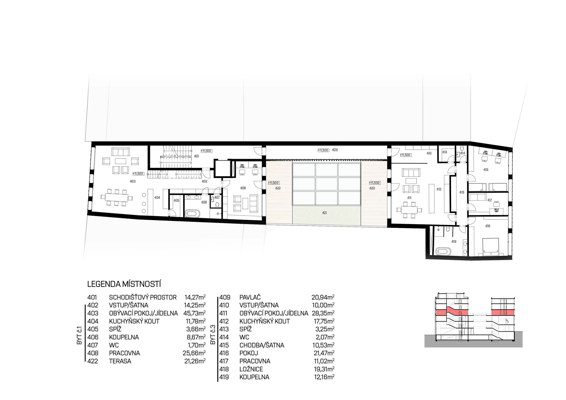
Byla to dost výzva. Největší omezení souvisí s prosvětlením prostor. Ze stran sousedních pozemků okna být nemůžou, takže jsem kvůli přístupu světla dům rozdělil na dvě části, mezi kterými je atrium, které osvětluje zadní byty. Fasádu do ulice částečně zastiňuje kostel. Bral jsem to tak, že do třetího patra stíní kostel a výše položené byty už světla mají dostatek. Rozměry parcely mi na druhou stranu práci usnadnily – železobetonová konstrukce domu nepotřebuje nosné sloupy a vnitřní prostor není narušován. Dům má sedm nadzemních podlaží - z hlediska financí a předpokladů investora jsem šel co nejvýše, aby byl pozemek využit.
V čem spočívá polyfunkce domu?
Dům obsahuje pět bytů, kavárnu a galerii. Navrhl jsem dva nadstandartní mezonetové byty s výměrou přibližně 200 metrů. V zadní části domu jsou tři menší klasické byty přístupné pavlačí. Servisní suterén slouží bytům a jako archivní zázemí galerie. Spodní část domu jsem se snažil otevřít pro veřejnost – ve vstupní části z Jezuitské ulice je kavárna, která funguje jako recepce a vstup do galerie. Ta se rozkládá ve třech patrech. Mojí myšlenkou bylo, že by prostor mohl sloužit i jako galerie architektury. O tu je v Brně zájem, ale nemá dost velké prostory.
Jak se podařilo v nevelkém prostoru zkombinovat jednotlivé provozy?
Vměstnat polyfunkční dům do tak malého prostoru bylo nesmírně náročné, polovinu semestru mi zabralo navrhnout fungování technického provozu budovy a komunikačních koridorů. Dům navíc pracuje s výškovým rozdílem dvou metrů mezi Jezuitskou ulicí a parkem na druhé straně. Zadní vstup by byl zprvu servisní, ale počítám s tím, že v případě rekonstrukce parku by byla galerie přístupná i z této strany.
Za pozornost stojí fasáda, jaký jste použil materiál?
S fasádou jsem pracoval detailně – aby navazovala na sousední domy, dodržovala parter a měla ten správný výraz a členění. Jako materiál jsem zvolil kámen, který má ve městě svoje místo.
Jsi ve čtvrtém ročníku, jaké jsou tvoje praktické zkušenosti?
Na střední škole stavební jsem byl na pozemním stavitelství, což je čistá stavařina bez architektury. Tam jsem si mimo jiné sáhl během odborné praxe na zedničinu. Poslední dva roky pracuji v architektonickém ateliéru v Hradci Králové.
Lze tvrdit, že jsou zednické zkušenosti pro budoucího architekta výhodou?
V první řadě jsem si ujasnil, že zedničinu dělat nechci. Na střední školu jsem šel s vizí studia architektury. Pro architekta je nicméně důležité setkat se s řemeslem, protože na stavbu chodit musí a měl by tomu, co se tam děje, rozumět. To, že jsem zednickou práci zažil a viděl na vlastní oči mi hodně pomáhá v tom, že si dokážu představit, co moje návrhy – čáry na papíře – obnáší v realitě, jestli je návrh vůbec proveditelný.
Návrh a realizace, to jsou často dvě věci. Jaké jsou vaše zkušenosti s řemeslníky?
V rámci bakalářské práce máme vypracovat detail 1:1, což je také zajímavá zkušenost. Zadáváme prvky detailu na výrobu a řemeslník občas vyrobí něco zcela jiného, než bylo zadáno. Udělá to podle sebe a toho, co umí. Ale jsou i tací, kteří mají na věc stejný pohled a se kterými je radost spolupracovat.
Je reálné, že se váš projekt zrealizuje?
Byl bych moc rád, nejdříve bych ale musel zjistit a oslovit majitele parcely, což je pokud vím sousední Česká televize. Zjistit, jaký je o tuto parcelu zájem. Ještě mě ale čeká dořešit technické detaily provozů – z bytů vedou různé šachty, které je třeba zkombinovat s prostory galerie. Jinak řečeno dokončit bakalářskou práci.
Jaké jsou tvoje další plány?
Brno mě hodně zaujalo a chtěl bych tady zůstat. Chci mít ale větší rozhled – čekají mě dva semestry odborné praxe a mám možnost vycestovat do zahraničí. Líbí se mi Dánsko, konkrétně ateliéry jako Cobe případně Effekt, cože je studio, které pracuje s životním prostředím. Anebo například norský ateliér Snøhetta.
Chceš si otevřít vlastní architektonickou kancelář?
Beru to tak, že minimálně 10 let chci získávat zkušenosti. Nemyslím si, že je nejlepší cesta, když si mladí architekti po škole otevřou ateliér. To podle mě vyžaduje dost zkušeností. Ale ano, jednoho dne bych chtěl vést vlastní atelier.
Co ti soutěž kromě ceny přinesla?
Jeden z porotců mě kontaktoval, že bychom mohli navázat spolupráci. Nechci ale být zatím konkrétní. A samozřejmě finanční odměnu.
Michal Králik
23 let
narozen v Hradci Králové
2010-2014 studoval Střední školu stavební, obor pozemní stavitelství v Hradci Králové
2014-nyní Fakulta stavební VUT v Brně, obor Architektura pozemních staveb
2018 hlavní Cena Arnošta Wiesnera
Více o výsledcích CAW 2017 ZDE.
Titulní fotografie Jiří Hloušek










