Dřevonástavba na budovách pošty a Telekomu vytvořila 26 nových bytů
KARLSRUHE — Sídliště na severozápadě Karlsruhe je typický příklad výstavby poválečného Německa tohoto typu. Staré vily se zdánlivě nahodile střídají s vysokými bytovkami, aniž by vytvářely smysluplný urbanistický celek. Výhoda je blízkost k centru, dobré spojení díky S-Bahn a sousedství s bývalým letištěm, jež se po odchodu amerických vojáků prohlásilo za přírodní rezervaci a slouží jako zelené plíce města.

Místní dřevostavební firma přišla s plánem na development v lokalitě a vybrala si pro něj komplex obývaný Německou poštou a Telekomem. Společně s Drescher Michalski Architekten naplánovali, že jej doplní o nástavbu. Při žádosti o stavební povolení však zjistili, že stávající budovy chystanou zátěž neunesou, což celý projekt zásadně ohrozilo.

Architekti naštěstí přišli s řešením. Drescher Michalski navrhl na větší ze dvou budov ocelovou konstrukci s příhradovými nosníky, která unese nástavbu, aniž by do původní budovy nějak zasahovala. Její pětimetrový rastr navíc odpovídá proporcím staré budovy, takže vše nenuceně splývá v jeden celek. Ocelové nosníky se taky z důvodů požární bezpečnosti obložily sádrokartonem a betonem, což výsledný harmonický dojem ještě zesiluje.

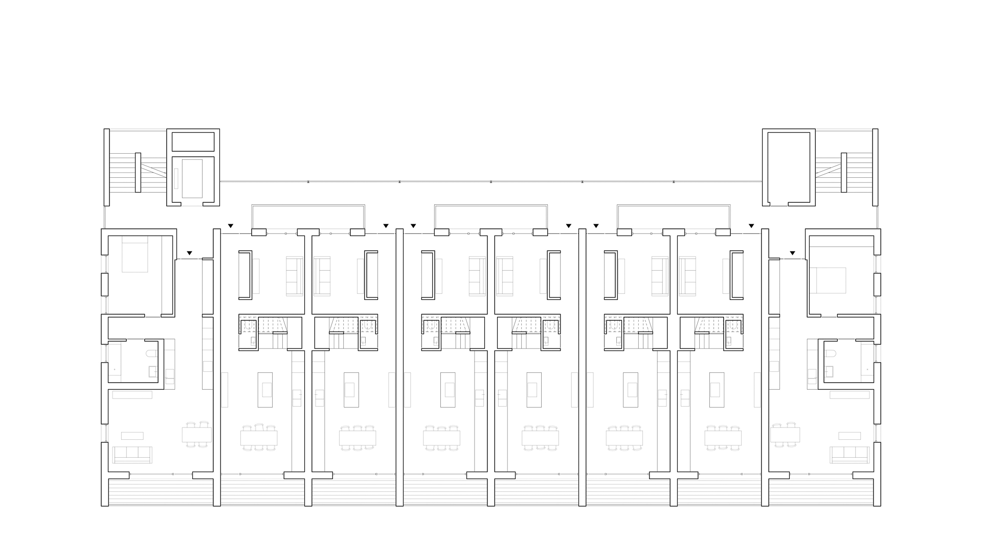
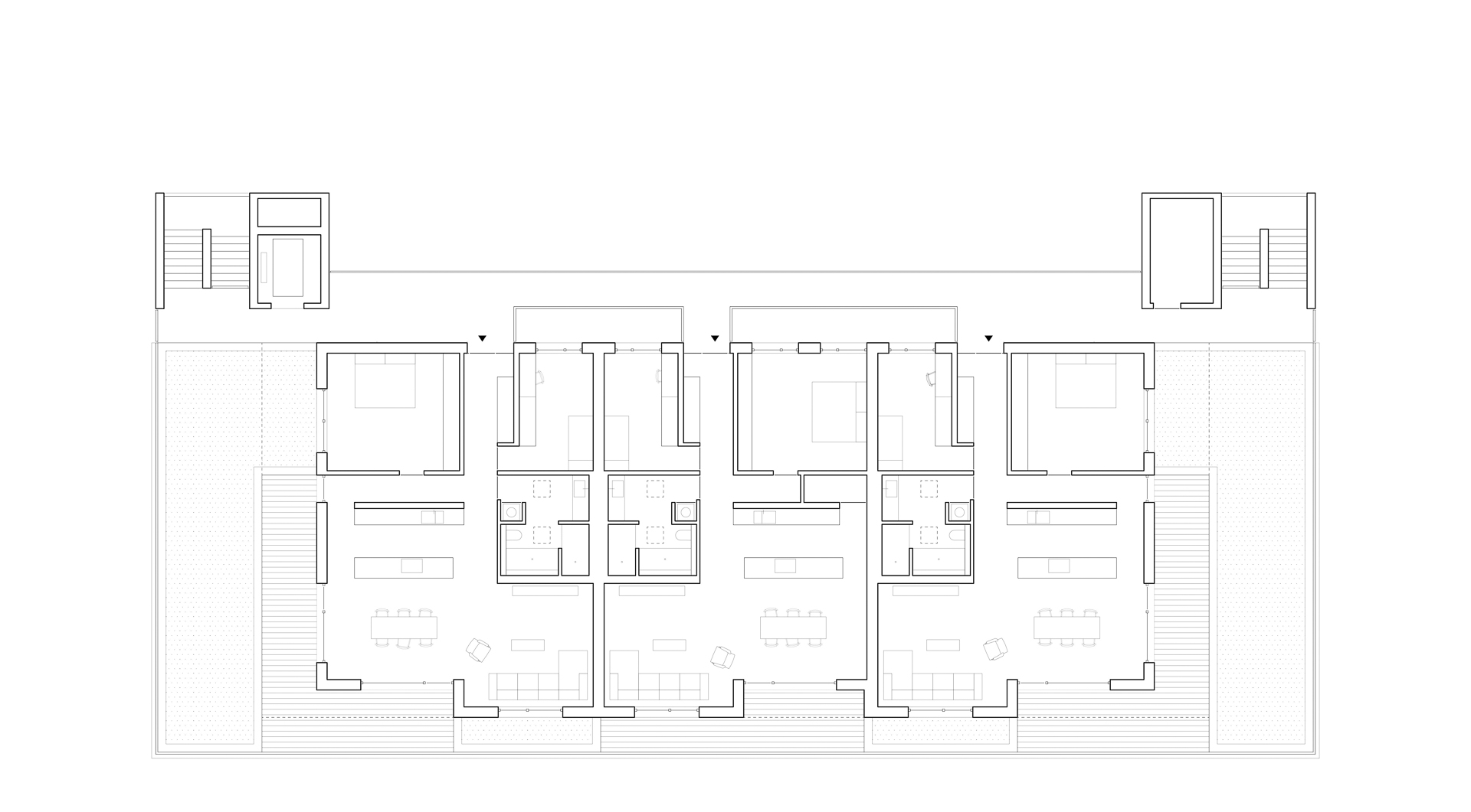
Technické řešení umožnilo přidat nástavbu o čtyřech podlažích. Celá je z masivu z blízkého Černého lesa, což je však zřejmé pouze v lodžiích na jižní straně. Fasády pokrývá izolace z minerální pěny a plechový obklad, uvnitř jsou povrchy vyvedené v sádrokartonu. 21 bytů zpřístupňuje pavlač na severní straně rozpínající se mezi dvěma novými betonovými schodišťovými šachtami. Byty jsou ve čtyřech typech – tři penthousy nahoře, šest mezonetů dole (všechny o rozloze 120 m2), šest bezbariérových bytů o 70 m2 a šest dvoupokojových o rozloze 60 m2.

Všechny byty zabírají celou 13metrovou hloubku budovy, takže se dají příčně větrat a navíc dávají výhled na Černý les, odkud pochází jejich stavební materiál. Vybaveny jsou jednoduše, ale kvalitně – dubové parkety, dřevěná okna a interiérové dveře a dlažba. Zelená barva budovy vypovídá o její energetické koncepci. Splňuje německou nízkoenergetickou normu díky nízkým energetickým nárokům na provoz a uplatněním zdrojů obnovitelné energie – na střeše má fotovoltaickou elektrárnu a teplo obstarává městské dálkové vytápění.

Menší sousední budova, kde dodnes sídlí Deutsches Telekom projevila větší odolnost a nese dvoupodlažní nástavbu i bez železobetonové podpory. Celá dostala tepelněizolační kompozitní systém z dřevovlákna a minerální omítky. Pod Telekom se nastěhovalo nezávislé lokální kulturní sdružení a nahoře v nástavbě obývají rezidenti dalších pět nových bytů.