Architekti se pustili do muzea, kde se jako děti při školní prohlídce nudili, a udělali z něj z něj atraktivní destinaci
- 5. října 2025
- Realizace
- autor: Jan Gerych
- Foto: Dominic Kummer
BEZAU — Vlastivědné muzeum v Bezau sídlí přes sto let v typickém v západorakouském venkovském stavení, kde ho měli možnost během školní exkurze navštívit i Markus Innauer a Sven Matt. Udělalo na ně dojem zaprášeného a neatraktivního místa, kam už se nikdy nevrátili. Mnoho let později si společně v Bregenzu otevřeli architektonickou kancelář a rozjeli praxi zaměřenou na projekty úzce propojené s krajinou, městem a jeho obyvateli. Když se tedy objevila příležitost dostavby zmíněného muzea, nenašli byste na to povolanějších.

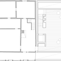
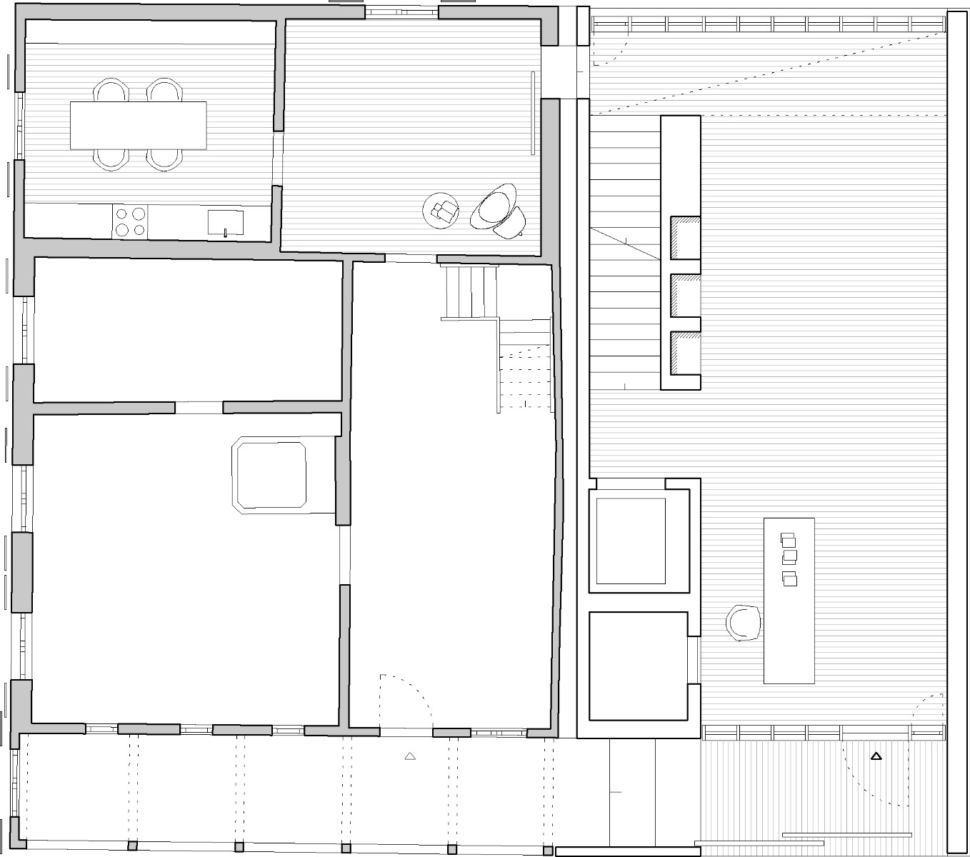
Budova muzea je typický exemplář tradičního bregenzského stavitelství, pochází z 16. století, má široký štít a stěny pokryté šindelem. Přibližně před sto lety přišla o stájovou část a právě tu k ní teď místní architekti znovu přidali. Dali si přitom záležet, aby původní budova jakožto skutečné muzeum stále hrála hlavní roli. Popasovali se s úkolem vměstnat do malé přístavby rozsáhlé prostorové plánování a sladit nízké stropy historické části se současnými požadavky.

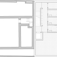
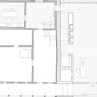
Třípatrová přístavba doplňuje objem muzea do původních proporcí. Vešlo se do ní reprezentativní vstupní foyer, výstavní prostory a také hygienické a skladovací místnosti. Hlavní roli zde hraje světlo, které v souhře se střídajícími se nízkými a vysokými stropy tvoří rozmanité světelné nálady, které jsou v souladu s daným využitím. Výstavní prostor a schodiště jsou téměř slavnostně zality světlem zhora, které je filtrováno dřevěnými lamelami, takže neoslňuje. Do horní části svítí světlo stítovými okny, odkud je taky výhled na vesnici.

„Fascinuje mě střídání vysokých a nízkých místností, světlých a tmavých světelných nálad ve starých budovách. Místnosti zde mají nízké stropy a tmavé dřevěné povrchy. V přístavbě jsme přijali stejné téma, ale interpretovali ho zcela jinak. Zde cíleně vpustíme světlo do místností skrze šetrně rozmístěné otvory,” popisuje Sven Matt.
Díky dostavbě se na muzeu v Bezau prolíná současné řemeslné zpracování s tím tradičním a kontrastují původní tmavé a nízké prostory s novými, které oplývají výškou a světlem. Dojem ještě v interiéru zesiluje použití nabíleného dřeva, které navazuje na tradici, kdy se stáje každoročně natíraly vápnem kvůli dezinfekci. Pro výstavní prostory se takové řešení jistě hodí a neubírá hmatový pocit všudypřítomného dřeva.

Přístavba se obešla bez rušivých technologií klimatizace a vzduchotechniky, stačí tu přirozená příčná ventilace. Z přízemí proudí vzduch z obou stran nahoru po schodištích a uniká střešními okny. Ta jsou elektronicky ovládaná, v horkých měsících je možné je nechat kvůli chlazení budovy otevřená přes noc. Jsou proto opatřena sítěmi proti hmyzu a déšť řeší senzory, které okna případně zavřou. Matt Innauer mají ve zvyku spolupracovat s místními šikovnými řemeslníky, což v tomto případě nabylo ještě většího významu. Muzeum je samofinancovaný spolek, takže ho Sdružení řemeslníků Bezau podpořilo sponzorsky.